広尾ビューヒルズ
- 敷金なし
- 新着
- インターネット利用無料
お問合せ可能期間
電話でお問合せする0120-918-497
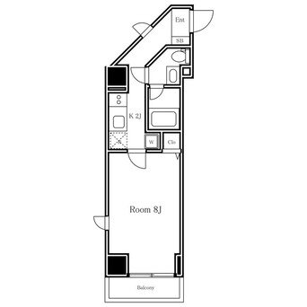
間取図
エイブルネットワーク恵比寿DX店
株式会社パーソナルエステートラボ
0120-918-497
電話でお問合せする0120-918-497












| お部屋の特徴 | 角部屋 |
|---|---|
| キッチン/バス・トイレ | ガスコンロ付、コンロ2口、システムキッチン、洗面台、洗面所独立、洗面化粧台、バストイレ別、シャワー、浴室乾燥機、温水洗浄便座、給湯、追い焚き機能 |
| お部屋の設備サービス | クローゼット、シューズボックス、インターネット無料、室内洗濯機置き場、エアコン、フローリング、ベランダ・バルコニー |
| セキュリティ | オートロック、TVインターホン |
| 共有スペースの特徴・設備 | 宅配ボックス、エレベーター、駐輪場、バイク可 |
お問合せ可能期間
| 階/階建 | 7階/11階建 | 築年/築年月 | 築15年/2010年09月 |
|---|---|---|---|
| 建物種別/構造 | マンション/鉄筋コンクリート造 | 間取り | 1K(洋室8.0・K2.0) |
| 駐車場 | バイク置場あり ※駐車場の金額表示は1台分の表示となります。 |
保険 | 損害保険加入要。 |
| 取引形態 | 一般媒介 | 家賃保証会社等 | 利用必須(実費)※契約時保証委託料:2.2万/月額保証委託料:賃料総額の2.2%又は5.5%。 |
| 入居時期 | リフォーム中(2025/10下旬) | 物件のお問合せ番号 | C03000898-000001011705 |
| 備考 | 保証会社必須: 契約時保証委託料:2.2万/月額保証委託料:賃料総額の2.2%又は5.5%。鍵セット費3300円。クリーニング費用50000円。更新料なし(事務手数料22000円あり)。 | ||
| 契約 | 一般契約(2年間) | ||
| 諸費用 | 契約時必須(鍵交換:3300円)/契約時必須(クリーニング:50000円)/その他費用(24時間サポート:330円)※毎月/その他費用(収納手数料:170円)※毎月 | ||
| 登録日/掲載有効期限 | [情報更新日]:2025/10/24[広告更新予定日]:2025/11/07 | ||
まいばすけっと渋谷東4丁目店(スーパー)まで271m
ライフ渋谷東店(スーパー)まで847m※営業時間:9:00~25:00
ローソン広尾高校前店(コンビニ)まで88m
ユニクロ恵比寿店(ショッピングセンター/アウトレットモール)まで770m
アトレ恵比寿(ショッピングセンター/アウトレットモール)まで939m※JR恵比寿駅直結の大型複合商業施設
ツルハドラッグ渋谷東店(ドラッグストア)まで628m
東京都立広尾病院(病院)まで1526m※総合病院
スターバックスコーヒー恵比寿ファーストスクエア店(その他飲食(ファミレスなど))まで838m
ダイソーピーコックストア恵比寿店(ディスカウントショップ)まで809m
マクドナルド恵比寿駅前店(ファストフード)まで824m
電話でお問合せする0120-918-497
| 所在地 | 東京都渋谷区恵比寿南1-11-19 中島ビル201 |
|---|---|
| 営業時間 | 10:00~18:00 毎週日曜日/年末年始/GW |
| 電話番号 | 0120-918-497 |
| 免許番号 | 東京都知事免許(2)第103841号 |
| 物件のお問合せ番号 | C03000898-000001011705 |
☆恵比寿・広尾・代官山エリアのお部屋探しは是非エイブルネットワーク恵比寿DX店へ!☆SNSはじめました!★Instagram @instagram.com/pel_sns/ ★Twitter @able_ebisudxtwitter.com/able_ebisudx定休日:日曜日
続きを読む| 指標 | データ | 取得年月 |
| 人口 | 332,519 | 2015年統計 |
| 人口(男性) | 224,533 | 2015年統計 |
| 人口(女性) | 107,986 | 2015年統計 |
| 人口(外国人) | 7,110 | 2015年統計 |
| 世帯数 | 135,749 | 2015年統計 |
| 指標 | データ | 取得年月 |
| 出生数 | 2,112 | 2015年統計 |
| 転入数 | 21,314 | 2018年統計 |
| 婚姻数 | 2,242 | 2018年統計 |
| 面積(km2) | 15.11㎢ | 2017年統計 |
| 犯罪数 | 7,768 | 2021年1月 |
| 指標 | 数 | 取得年月 |
| 一般診療所 | 471 | 2008年統計 |
| 内科系診療所 | 302 | 2018年11月 |
| 外科系診療所 | 132 | 2018年11月 |
| 小児科系診療所 | 64 | 2018年11月 |
| 産婦人科系診療所 | 59 | 2018年11月 |
| 指標 | 数 | 取得年月 |
| 皮膚科系診療所 | 142 | 2018年11月 |
| 眼科系診療所 | 45 | 2018年11月 |
| 耳鼻咽喉科系診療所 | 25 | 2018年11月 |
| 歯科 | 385 | 2018年11月 |
| 薬局 | 134 | 2018年11月 |
| 指標 | 数 | 取得年月 |
| 公立小学校 | 18 | 2020年度 |
| 私立小学校 | 3 | 2020年度 |
| 公立中学校 | 8 | 2020年度 |
| 私立中学校 | 5 | 2020年度 |
| 指標 | 数 | 取得年月 |
| 公立高等学校 | 3 | 2020年度 |
| 私立高等学校 | 7 | 2020年度 |
※市区町村データは自治体の方針や統廃合などにより、データの取得や表示ができない地域があります。また、情報の正確性は保証されませんので必ず事前にご確認の上、ご利用ください。
この物件にある設備・特徴から渋谷区の賃貸物件を探す
建物種別から渋谷区の賃貸物件を探す