レジディア大通西
- 仲介手数料家賃の55%(税込)
- 初期費用クレジット払い可(※条件要確認)
- 新着
| 家賃 管理費 |
12.7万円 7,000円 |
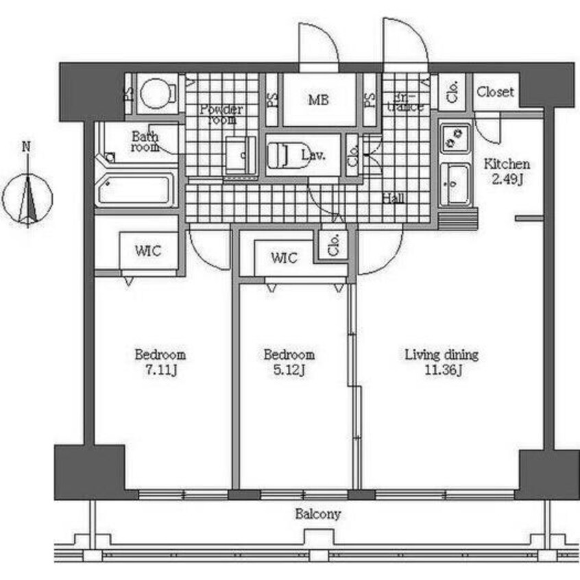
敷金/保証金 | 127000円/-- | 間取り | 2LDK | 築年 | 築18年 |
|---|---|---|---|---|---|---|---|
| 礼金/償却 | 127000円/-- | 広さ | 63.95㎡ | 建物種別 | マンション | ||
| 支払い |
初期費用クレジット払い可(※条件要確認) 初期費用支払いに使えるクレジットカードの種類や条件が決められている場合がございますので、店舗までお問合せください。 |
||||||
| 交通 |
|
階/階建 | 15階/15階建(地下1階) | 向き | 東 | ||
| 住所 | 北海道札幌市中央区大通西8丁目 | ||||||















