山陽本線(中国)/防府駅 バス22分工業団地東海カーボン前下車:停歩7分 1-2階 築47年
- 礼金なし
- 新着
- 即入居可
お問合せ可能期間
電話でお問合せする0835-28-7031
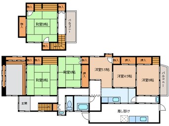
間取図
エイブルネットワーク防府店
株式会社 防府リビング
0835-28-7031
電話でお問合せする0835-28-7031












| キッチン/バス・トイレ | ガスコンロ設置可、洗面台、バストイレ別、シャワー、給湯 |
|---|---|
| お部屋の設備サービス | ※CATV、ベランダ・バルコニー ※CATVについて…利用料金は、共益費に含まれるタイプや個別に契約するタイプなど物件により異なります。詳しくは、物件お取り扱い不動産会社にお問合せください。 |
| 共有スペースの特徴・設備 | 駐車場2台以上 |
お問合せ可能期間
| 階/階建 | 1-2階/2階建 | 築年/築年月 | 築47年/1978年10月 |
|---|---|---|---|
| 建物種別/構造 | 貸家/木造 | 間取り | 6K(和室6.0・和室8.0・洋室5.5・洋室4.5・洋室6.0・和室8.0・K4.0) |
| 駐車場 | 無料駐車場3台 ※駐車場の金額表示は1台分の表示となります。 |
保険 | 損害保険加入要。 |
| 取引形態 | 一般媒介 | 家賃保証会社等 | 利用必須(実費) |
| 入居時期 | 即入居 | 物件のお問合せ番号 | C03000425-0000009751 |
| 備考 | 図面と現況が異なる場合は、現況を優先致します。駐車場は近隣になります。 保証会社加入要(初回22,500円、月額780円)。現状渡しになります。浄化槽代個人負担。 | ||
| 契約 | 一般契約(2年間) | ||
| 登録日/掲載有効期限 | [情報更新日]:2025/11/10[広告更新予定日]:2025/11/24 | ||
電話でお問合せする0835-28-7031
| 所在地 | 山口県防府市新橋町 9-28 |
|---|---|
| 営業時間 | 09:00~18:00 毎週水曜・祝日定休 |
| 電話番号 | 0835-28-7031 |
| 免許番号 | 山口県知事免許(4)第3325号 |
| 物件のお問合せ番号 | C03000425-0000009751 |
平素より弊社をご利用頂きまして誠に有難うございます。弊社では新型コロナウイルス感染防止対策の為、下記対応をさせて頂いております。・接客スペースのご利用を一部制限させて頂くことがございます。ご来店の際は事前のご予約をおすすめしておりますので、お電話やメールにてお問い合わせ下さい。・飛沫感染防止の為、接客カウンターにアクリル製の間仕切りを設置しております。・物件のご案内の際は、各個別自動車にて現地まで先導又は現地にて合流させて頂いております。・ご来店の際はマスク着用をお願いしております。従業員もマスクを着用しております。・従業員の手洗い、店内の換気、除菌を行い、衛生維持に努めております。皆様にはご不便をお掛け致しますが、何卒ご理解ご協力を賜りますようお願い申し上げます。
続きを読む| 指標 | データ | 取得年月 |
| 人口 | 115,942 | 2015年統計 |
| 人口(男性) | 55,910 | 2015年統計 |
| 人口(女性) | 60,032 | 2015年統計 |
| 人口(外国人) | 775 | 2015年統計 |
| 世帯数 | 47,573 | 2015年統計 |
| 指標 | データ | 取得年月 |
| 出生数 | 990 | 2015年統計 |
| 転入数 | 5,117 | 2018年統計 |
| 婚姻数 | 528 | 2018年統計 |
| 面積(km2) | 189.37㎢ | 2017年統計 |
| 犯罪数 | 1,299 | 2021年1月 |
| 指標 | 数 | 取得年月 |
| 一般診療所 | 70 | 2008年統計 |
| 内科系診療所 | 44 | 2018年11月 |
| 外科系診療所 | 20 | 2018年11月 |
| 小児科系診療所 | 12 | 2018年11月 |
| 産婦人科系診療所 | 4 | 2018年11月 |
| 指標 | 数 | 取得年月 |
| 皮膚科系診療所 | 5 | 2018年11月 |
| 眼科系診療所 | 4 | 2018年11月 |
| 耳鼻咽喉科系診療所 | 5 | 2018年11月 |
| 歯科 | 55 | 2018年11月 |
| 薬局 | 54 | 2018年11月 |
| 指標 | 数 | 取得年月 |
| 公立小学校 | 17 | 2020年度 |
| 私立小学校 | 0 | 2020年度 |
| 公立中学校 | 11 | 2020年度 |
| 私立中学校 | 1 | 2020年度 |
| 指標 | 数 | 取得年月 |
| 公立高等学校 | 2 | 2020年度 |
| 私立高等学校 | 2 | 2020年度 |
※市区町村データは自治体の方針や統廃合などにより、データの取得や表示ができない地域があります。また、情報の正確性は保証されませんので必ず事前にご確認の上、ご利用ください。
この物件にある設備・特徴から防府市の賃貸物件を探す
建物種別から防府市の賃貸物件を探す